WOHNÄ – LÄBÄ – ACHOU

Lebensqualität zwischen Natur & Nachbarschaft

Grafik Pfeil
Grafik Pfeil

factsheet

24

Mietwohnungen mit 2,5 – 4,5 Zimmern

27

Tiefgaragenplätze

Eco-Holzheizung

über Fernwärmeverbund

Nachhaltige

Holzbauweise

Photovoltaik

Dachflächen voll genutzt

Wohnraum

Alle Mietwohnungen verfügen über

// einen grosszügigen Balkon, nach Süden gerichtet 
// lichtdurchflutete Räume dank grossen Fenstern auch Richtung Norden

// Reduits mit eigener Waschmaschine / Tumbler
// moderne Gebäudeautomatik
// allg. hoher Ausbaustandard

// Keller, Auto- und Fahrradeinstellplätze in der Tiefgarage

Etappierung des areals

1

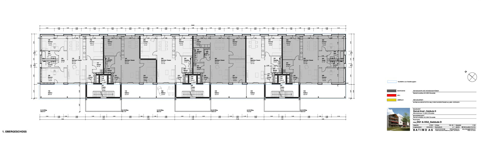
Neubau Wohngebäude D

Neubau Wohngebäude D

// 24 Mietwohnungen mit 2 ½ - 4 ½ Zimmern

// 27 Tiefgaragenplätze

// Nachhaltige Holzbauweise

// Ökologische Holzheizung über Fernwärmeverbund

// Volle Belegung der Dachflächen mit Photovoltaik

// Familienfreundliche Anlage mit grosszügigen Freiflächen


Neubau Wohngebäude D

Vorteile der Region

Icon

Wie ist die Lebensqualität in Einsiedeln?

Einsiedeln bietet eine herausragende Lebensqualität, die sich durch eine einzigartige Kombination aus Natur, Kultur und Infrastruktur auszeichnet. Die Region ist umgeben von einer beeindruckenden Bergkulisse und liegt direkt am Sihlsee – ideal für Freizeitaktivitäten wie Wandern, Skifahren, Velofahren oder Wassersport.

Gleichzeitig bietet Einsiedeln eine exzellente Gesundheitsversorgung, ein vielfältiges Bildungsangebot mit Schulen allerBildungsstufen sowie zahlreiche kulturelle Veranstaltungen – etwa in der barocken Klosterkirche, dem KulturvereinChärnehus oder einem der vielen spezialisierten Museen undAusstellungen. Einsiedeln ist ruhig und sicher, mit kurzen Wegen und einem aktiven Vereinsleben. Perfekt für Familien, Paare und alle, die naturnah, aber dennoch gut angebunden leben möchten.


Icon

Welche steuerlichen Vorteile habe ich als Privatperson?

Privatpersonen in Einsiedeln profitieren – wie Unternehmen – von einem attraktiven Steuerumfeld. Die Steuersätze im Kanton Schwyz zählen zu den tiefsten der Schweiz:

Kantonssteuer: Relativ moderat im Vergleich zu anderen Kantonen.

Gemeindesteuer: In Einsiedeln liegt der Gemeindesteuerfuss bei 170% (Stand 2024), was im regionalen Vergleich konkurrenzfähig ist.

Vermögenssteuer: Auch hier bietet Einsiedeln günstige Bedingungen.

Keine Erbschafts- oder Schenkungssteuer für direkte Nachkommen, was besonders für Familien interessant ist.

Diese Rahmenbedingungen machen den Standort auch für vermögende Privatpersonen, Pendler oder Zweitwohnungsbesitzer attraktiv.

Icon

Wie ist die Infrastruktur im Alltag?

Einsiedeln überzeugt durch eine sehr gute Alltagsinfrastruktur:


Bildung: Kindergärten, Primar- und Sekundarschulen sowie Gymnasium direkt vor Ort

Gesundheit: Ädiv. niedergelassene Ärzte, Gesundheitszentrum,Apotheken, Spitex-Dienste, zwei grössere Seniorenheime unddas Spital Einsiedeln

Einkauf & Gastronomie: Zahlreiche lokale Geschäfte, Cafés, Restaurants sowie Wochenmarkt mit regionalen Produkten

ÖV & Mobilität: Gute Bus- und Bahnverbindungen sowie diverse Carsharing-Angebote

Digitalisierung: Ausbau von Glasfaseranschlüssen und flächendeckendem Mobilfunknetz


Interessieren Sie sich für Gewerberaum?

Die Gebäude werden zukunftsweisend auf die Bedürfnisseder Mieter hin saniert oder neu gebaut, so wie gerade jetzt fürdie Steinel Solutions AG, im ersten Bauabschnitt (A). Zur Mietewerden in den nächsten Jahren multifunktionale Flächen inGrössen von 300 bis 3500 m² angeboten werden.

Zum Gewerberaum

Steinel Immobilien AG
Allmeindstrasse 10

CH-8840 Einsiedeln

+41 76 395 16 44

info@steinel.swiss